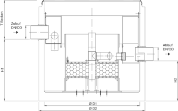
Schwermetallfilter HMS – Großdachflächenentwässerung
Produktvorteile
- Hohe Sedimentations- und Filterleistung
- Kompakte Bauweise
- Gute Wartungsmöglichkeit
- Platzsparender Anschluss an die bestehende Regenwasserkanalisation
Produktinformationen
- Aus Stahlbeton
- Mit mehrschichtigem individuell aufbaufähigem Filter
- Anschließbare Fläche bis 2.500 m²
- Maximale Bypassleistung 75 l/s
- Maximaler Filterdurchsatz 7,5 l/s
- Maß TBecken inklusive Dichtung mit integriertem Lastabtrag





