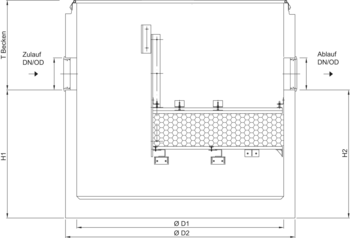
Schwermetallfilter HMS – Direkteinleitung
Produktvorteile
- Hohe Sedimentations- und Filterleistung
- Zweistufiges Behandlungssystem
- Große Abflussleistung
- Verstopfungsfreies System
- Gute Wartungsmöglichkeit
Produktinformationen
- Niederschlagswasserbehandlungsanlage zum Anschluss von Verkehrsflächen und anschließender Einleitung in die Vorflut z.B. gemäß Trennerlass NRW
- Aus Stahlbeton
- Mit mehrschichtigem individuell aufbaufähigem Filter
- Mit Bypasslösung
- Anschließbare Fläche bis 10.000 m²
- Auf Anfrage: Größere Durchmesser der Zu- und Ablaufleitung
- Maß TBecken inklusive Dichtung mit integriertem Lastabtrag





