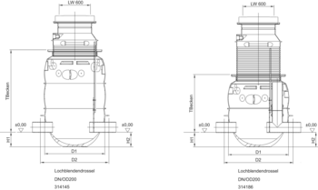
Lochblendendrossel PE
Produktvorteile
- Lochblenden-Drosselsystem im PE-Schacht
- Durchflussmenge 0 - 52 l/s
- Mit und ohne Notüberlauf
Produktinformationen
- Aus Kunststoff
- Verschiedene Schachthöhen, Lochblendengrößen und Anschlussrohrgrößen möglich
- Lochblendengröße objektspezifisch erstellt
- Verschiedene Schachthöhen verfügbar. Individuelle Konfiguration bei Auftragserteilung (max. Einstauhöhe, Nennweite, mit/ohne Überlauf etc.)
- Technisch einfach
Infobox
Der ACO ProjectManager ist unser neues Tool zur Auslegung eines Regenwasserbehandlung-Systems. Es unterstützt Sie in der Vorplanung.
Schauen Sie mal rein. #ProjectManager.



