ACO Sedised-C
Produktvorteile
- Zum Schutz vor Versandung von Regenrückhaltesystemen und Blockrigolen zur Versickerung
- Nach DWA-M 153 Typ D25, D24 oder D21
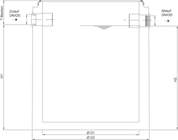
- Zu- und Ablaufseite mit Prallwand gegen hydraulischen Kurzschluss
Produktinformationen
- Aus Stahlbeton C50/60
- Monolithische Bauweise
- Expositionsklasse XC4, XD3, XS3, XF2, XF3, XM2, XA2
- Maß T Becken inklusive Dichtung mit integriertem Lastabtrag
Infobox
Der ACO ProjectManager ist unser neues Tool zur Auslegung eines Regenwasserbehandlung-Systems. Es unterstützt Sie in der Vorplanung.
Schauen Sie mal rein. #ProjectManager.




