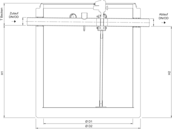
Protector-D mit spezieller Innenbeschichtung
Produktvorteile
- Mit allgemeiner bauaufsichtlicher Zulassung Z‑74.1‑70
- Innenbeschichtung des Auffangraumes mit DIBt-geprüftem Beschichtungssystem, rissüberbrückend, elektrisch ableitfähig, verarbeitet durch Fachbetrieb nach § 62 WHG (Wasserhaushaltsgesetz)
Produktinformationen
- Sicherheitsauffangbecken mit spezieller Innenbeschichtung und Absperrarmatur
- Aus Stahlbeton
- Becken in Fertigbauweise
- Im Auffangbereich fugenlos mit typengeprüfter Statik
- Innenverrohrung aus Edelstahl, mit Überlauf und Entleervorrichtung
- Lastmodell E4 nach DIN 19901
- Absperrklappe mit Klappenscheibe aus Edelstahl/halarbeschichtet und Dichtmanschette aus EPDM
- Elektrischer Drehantrieb 230 V/50 Hz, in ex-geschützter Ausführung Ex II 2G Ex-de II C T6, Schutzart IP 68, Trennkupplung mit Handhebel für manuelle Betätigung
- Schließzeit ca. 12 Sekunden
- Mit Potenzialausgleichsleitung und Potenzialausgleichsschiene
- Mit elektrischer Rückmeldemöglichkeit für Klappenstellung (offen/geschlossen)
- Folgende Komponenten oder Zubehörteile sind separat zu bestellen (Montage bauseits):
- Abdeckplatte mit Schachtabdeckung (Aufbau 1 oder Aufbau 2)
- Stellungsschalter
- Alarmanlage für Sammelraumüberwachung
- Schacht- und Ausgleichsringe zum Erreichen der gewünschten Zulauftiefe

Aufbau 1 als Abdeckplatte

Aufbau 2 als Übergangsplatte mit Abdeckplatte

Auflagering nach/ähnlich DIN 4034 (Position 1)

Procurat Alarmanlagen
Stellungsschalter
Passend für
- Protector-D
- Flowshut-C
Beschreibung
- Automatisches und manuell-elektrisches Öffnen und Schließen der Absperrklappe
- Im Kunststoffgehäuse mit Klarsichttür
- Abmessungen: 200 x 300 x 170 mm
- Schutzart: IP65
- Netzanbindung 230 V/50 Hz
- Preis 01.01.2025 in € (zzgl. Umsatzsteuer): 1603,00
- Rabattgruppe: HS
- Gewicht: 5 kg

Aufbau 1 als Abdeckplatte

Aufbau 2 als Übergangsplatte mit Abdeckplatte

Auflagering nach/ähnlich DIN 4034 (Position 1)

Procurat Alarmanlagen
Stellungsschalter
Passend für
- Protector-D
- Flowshut-C
Beschreibung
- Automatisches und manuell-elektrisches Öffnen und Schließen der Absperrklappe
- Im Kunststoffgehäuse mit Klarsichttür
- Abmessungen: 200 x 300 x 170 mm
- Schutzart: IP65
- Netzanbindung 230 V/50 Hz
- Preis 01.01.2025 in € (zzgl. Umsatzsteuer): 1603,00
- Rabattgruppe: HS
- Gewicht: 5 kg

