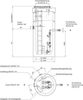
Grundschacht
Produktvorteile
- Montierte Innenverrohrung
- Weitestgehend korrosionsbeständige Rohrleitungsteile aus Gusseisen EN-GJL und Kunststoff PVC-U
- Schachtabdeckung mit geringem Deckelgewicht und wartungsfreier, schraubloser Arretierung
- Montierte universelle Niveauschaltungshalterung
- Bauhöhe und Ausstattung nach Baukastenprinzip anpassbar
- Weitestgehend ablagerungsfreier Sammelraum mit großem Nutzvolumen
Produktinformationen
- Einsatz
- Zur Förderung von Schmutz- und Abwasser aus Sanitärräumen, unterhalb der Rückstauebene
- Entwässerung von Niederschlagsflächen
- Schutz von erdeingebauten Abscheideranlagen gegen Rückstau aus der öffentlichen Kanalisation
- Konstruktion
- Sammelschacht aus hochwertigem güteüberwachtem Beton
- Maximale Einbautiefe Kl. D 400: 7,0 Meter
- Weitestgehend ablagerungsfreier Sammelraum mit Berme
- Leichte Zugänglichkeit für Wartungsarbeiten
- Einsatz von unterschiedlichen Niveaugebern durch universelle Niveauschaltungshalterung
- Ausgewählte Werkstoffkombinationen für höhere Standzeit
- Lieferumfang
- Verrohrung DN/OD 63 aus PVC-U bis ca. 30 cm außerhalb des Schachtes
- Unterwasserkupplungssystem mit kurzem Gleitrohr aus Kunststoff
- Kugelrückschlagventil aus Gusseisen EN-GJL
- Kugelhahn aus PVC-U
- Universal-Niveauschaltungshalterung aus Edelstahl
- 1 Zulauf DN/OD 160
- Grundschacht mit Berme (Voute), teilweise mit Kabelleerroh und Entlüftungsanschluss DN/OD 110
- Folgende Komponenten oder Zubehörteile sind separat zu bestellen (Montage bauseits):
- Abdeckplatte inklusive Schachtabdeckung
- Pumpe
- Steigleiter
- Niveauschaltung elektrisch oder pneumatisch
- Führungsrohr und Zugkette
- Schaltgerät optional mit Freiluftschrank
- Schacht- und Ausgleichsringe zum Erreichen der gewünschten Zulauftiefe
Schaltgerät ACO Multi Control Duo
Signalanlage zu Schaltgerät Multi Control Duo
Passend für
- Oleolift-C
- Lipulift-C
- Fertigpumpstation Powerlift
- Schaltkasten Multi Control Mono und Duo
Beschreibung
- Preis 01.01.2025 in € (zzgl. Umsatzsteuer): 364,75
- Rabattgruppe: PS
- Selbstaufladend
- Mit potentialfreiem Kontakt
- Optisch und akustisch
- Ohne Kontaktgeber
- Zur Montage außerhalb des Ex-Bereiches
- Abmessungen: 175 x 125 x 75 mm B x H x T
- Schutzart: IP65
- Betriebsspannung: 230 V/AC 50/60 Hz
- Steckerfertig mit Kabel: 2 m
- Gewicht: 0,8 kg
Lufteinperlung/Kompressor
Passend für
- Lipulift-P
- Lipulift-C
- Fertigpumpstation Powerlift
- Multi Control Schaltgeräte Mono und Duo
- Offene Staudruckglocke
Beschreibung
- Zur Lufteinperlung, um eine Verstopfung durch Ablagerungen zu vermeiden
- Ausführung für ACO Multi Control Schaltgerät
- 1 x Rückschlagventil
- 2 x Schlauchanschluss
- 2 x 6/8 mm, 1 x 4/6 mm und 1 m Schlauch 4/6 mm
- Preis 01.01.2025 in € (zzgl. Umsatzsteuer): 400,75
- Rabattgruppe: PS
- Gewicht: 0,2 kg
Freiluftschrank
Passend für
- Lipulift-P
- Lipulift-C
- Fertigpumpstationen Powerlift
Beschreibung
- Als Leergehäuse
- Abmessungen: 806 x 2000 x 338 mm B x H x T
- Mit horizontaler Trennwand
- Bereich oberhalb der Trennwand: Platzreserve für ein bauseitiges Schaltgerät Multi Control mono oder duo, mit Steckdose 230 V und 400 V
- Bereich unterhalb der Trennwand: Platzreserve für eine bauseitige Rückstauschleife DN 50 – 200, mit Heizung 100 W mit Thermostat
- Preis 01.01.2025 in € (zzgl. Umsatzsteuer): 3310,00
- Rabattgruppe: PS
- Gewicht: 60 kg
Staudruckglockenset
Staudruckglockenset
Druckaufnehmer FMX 21
Druckaufnehmer FMX 21
Druckaufnehmer FMX 21
Schutzrohr zur Druckaufnehmer
Pumpenzugkette
Passend für
Powerlift-PSD-B-1000+1500
Beschreibung
- Aus Edelstahl, Tagkraft 500 kg (Meterware)
- Preis 01.01.2025 in € (zzgl. Umsatzsteuer): 62,50
- Rabattgruppe: PS
- Gewicht: 0,8 kg
Schäkel
Passend für
Powerlift-PSD-B-1000+1500
Beschreibung
- Zu Edelstahlkette (je Pumpenzugkette 1x)
- Preis 01.01.2025 in € (zzgl. Umsatzsteuer): 18,40
- Rabattgruppe: PS
- Gewicht: 0,5 kg
Führungsrohr
Passend für
- Powerlift-PSD-B-1000
Beschreibung
- Aus GFK, 43 mm Außendurchmesser (Meterware)
- Preis 01.01.2025 in € (zzgl. Umsatzsteuer): 26,00
- Rabattgruppe: PS
- Gewicht: 1 kg
Führungsrohr
Passend für
- Powerlift PSD-B-1500
Beschreibung
- Aus GFK, 60 mm Außendurchmesser (Meterware)
- Preis 01.01.2025 in € (zzgl. Umsatzsteuer): 42,75
- Rabattgruppe: PS
- Gewicht: 1 kg
Verschlussstopfen, DN 100
Passend für
- Lipulift-P
- Lipulift-C
- Fertigpumpstationen Powerlift
Beschreibung
- Für Kabelleerrohr DN/OD 110 (schwadensicher)
- Preis 01.01.2025 in € (zzgl. Umsatzsteuer): 84,50
- Rabattgruppe: PS
- Gewicht: 0,1 kg
Ex-Barriere zu Druckaufnehmer
Pumpenzugkette inkl. Schäkel
Passend für
- Oleolift-C
- Lipulift-C
- Fertigpumpstationen Powerlift
Beschreibung
- Aus Edelstahl
- Tragkraft 200 kg
- Preis 01.01.2025 in € (zzgl. Umsatzsteuer): 160,25
- Rabattgruppe: PS
- Aus Edelstahl
- Tragkraft 200 kg
- Länge: 4 m
- Gewicht: 16 kg
Pumpenzugkette inkl. Schäkel
Passend für
- Oleolift-C
- Lipulift-C
- Fertigpumpstationen Powerlift
Beschreibung
- Aus Edelstahl
- Tragkraft 200 kg
- Preis 01.01.2025 in € (zzgl. Umsatzsteuer): 319,50
- Rabattgruppe: PS
- Aus Edelstahl
- Tragkraft 200 kg
- Länge: 2 x 4 m
- Gewicht: 31 kg
Schaltgerät ACO Multi Control Duo
Signalanlage zu Schaltgerät Multi Control Duo
Passend für
- Oleolift-C
- Lipulift-C
- Fertigpumpstation Powerlift
- Schaltkasten Multi Control Mono und Duo
Beschreibung
- Preis 01.01.2025 in € (zzgl. Umsatzsteuer): 364,75
- Rabattgruppe: PS
- Selbstaufladend
- Mit potentialfreiem Kontakt
- Optisch und akustisch
- Ohne Kontaktgeber
- Zur Montage außerhalb des Ex-Bereiches
- Abmessungen: 175 x 125 x 75 mm B x H x T
- Schutzart: IP65
- Betriebsspannung: 230 V/AC 50/60 Hz
- Steckerfertig mit Kabel: 2 m
- Gewicht: 0,8 kg
Lufteinperlung/Kompressor
Passend für
- Lipulift-P
- Lipulift-C
- Fertigpumpstation Powerlift
- Multi Control Schaltgeräte Mono und Duo
- Offene Staudruckglocke
Beschreibung
- Zur Lufteinperlung, um eine Verstopfung durch Ablagerungen zu vermeiden
- Ausführung für ACO Multi Control Schaltgerät
- 1 x Rückschlagventil
- 2 x Schlauchanschluss
- 2 x 6/8 mm, 1 x 4/6 mm und 1 m Schlauch 4/6 mm
- Preis 01.01.2025 in € (zzgl. Umsatzsteuer): 400,75
- Rabattgruppe: PS
- Gewicht: 0,2 kg
Freiluftschrank
Passend für
- Lipulift-P
- Lipulift-C
- Fertigpumpstationen Powerlift
Beschreibung
- Als Leergehäuse
- Abmessungen: 806 x 2000 x 338 mm B x H x T
- Mit horizontaler Trennwand
- Bereich oberhalb der Trennwand: Platzreserve für ein bauseitiges Schaltgerät Multi Control mono oder duo, mit Steckdose 230 V und 400 V
- Bereich unterhalb der Trennwand: Platzreserve für eine bauseitige Rückstauschleife DN 50 – 200, mit Heizung 100 W mit Thermostat
- Preis 01.01.2025 in € (zzgl. Umsatzsteuer): 3310,00
- Rabattgruppe: PS
- Gewicht: 60 kg
Staudruckglockenset
Staudruckglockenset
Druckaufnehmer FMX 21
Druckaufnehmer FMX 21
Druckaufnehmer FMX 21
Schutzrohr zur Druckaufnehmer
Pumpenzugkette
Passend für
Powerlift-PSD-B-1000+1500
Beschreibung
- Aus Edelstahl, Tagkraft 500 kg (Meterware)
- Preis 01.01.2025 in € (zzgl. Umsatzsteuer): 62,50
- Rabattgruppe: PS
- Gewicht: 0,8 kg
Schäkel
Passend für
Powerlift-PSD-B-1000+1500
Beschreibung
- Zu Edelstahlkette (je Pumpenzugkette 1x)
- Preis 01.01.2025 in € (zzgl. Umsatzsteuer): 18,40
- Rabattgruppe: PS
- Gewicht: 0,5 kg
Führungsrohr
Passend für
- Powerlift-PSD-B-1000
Beschreibung
- Aus GFK, 43 mm Außendurchmesser (Meterware)
- Preis 01.01.2025 in € (zzgl. Umsatzsteuer): 26,00
- Rabattgruppe: PS
- Gewicht: 1 kg
Führungsrohr
Passend für
- Powerlift PSD-B-1500
Beschreibung
- Aus GFK, 60 mm Außendurchmesser (Meterware)
- Preis 01.01.2025 in € (zzgl. Umsatzsteuer): 42,75
- Rabattgruppe: PS
- Gewicht: 1 kg
Verschlussstopfen, DN 100
Passend für
- Lipulift-P
- Lipulift-C
- Fertigpumpstationen Powerlift
Beschreibung
- Für Kabelleerrohr DN/OD 110 (schwadensicher)
- Preis 01.01.2025 in € (zzgl. Umsatzsteuer): 84,50
- Rabattgruppe: PS
- Gewicht: 0,1 kg
Ex-Barriere zu Druckaufnehmer
Pumpenzugkette inkl. Schäkel
Passend für
- Oleolift-C
- Lipulift-C
- Fertigpumpstationen Powerlift
Beschreibung
- Aus Edelstahl
- Tragkraft 200 kg
- Preis 01.01.2025 in € (zzgl. Umsatzsteuer): 160,25
- Rabattgruppe: PS
- Aus Edelstahl
- Tragkraft 200 kg
- Länge: 4 m
- Gewicht: 16 kg
Pumpenzugkette inkl. Schäkel
Passend für
- Oleolift-C
- Lipulift-C
- Fertigpumpstationen Powerlift
Beschreibung
- Aus Edelstahl
- Tragkraft 200 kg
- Preis 01.01.2025 in € (zzgl. Umsatzsteuer): 319,50
- Rabattgruppe: PS
- Aus Edelstahl
- Tragkraft 200 kg
- Länge: 2 x 4 m
- Gewicht: 31 kg











