Druckleitungssets
Produktvorteile
- Ideal zur Nutzung bestehender Schächte als Pumpstation
- Vormontiert und direkt bereit zur Installation
- Einfach anpassbar
Produktinformationen
- Einsatz
- Entwässerung von Niederschlagsflächen
- Konstruktion
- Sammelschacht aus hochwertigem güteüberwachtem Beton
- Maximale Einbautiefe Kl. D 400, 7,0 m
- Leichte Zugänglichkeit für Wartungsarbeiten
- Einsatz von unterschiedlichen Niveaugebern durch universelle Niveauschaltungshalterung
- Ausgewählte Werkstoffkombinationen für höhere Standzeit
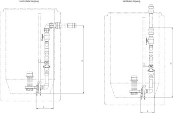
- Druckleitungen für bausseitige Schächte
- Flexibel anpassbar in der Höhe des Druckleitungsabgangs
- Horizontaler und vertikaler Druckleitungsabgang möglich
- Druckleitung aus PVC-U
- Pumpen und Zubehör separat erhältlich

