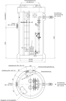
Powerlift Pro - Grundschacht
Produktvorteile
- Montierte Innenverrohrung
- Weitestgehend korrosionsbeständige Rohrleitungsteile aus Gusseisen EN-GJL und Kunststoff PVC-U
- Schachtabdeckung mit geringem Deckelgewicht und wartungsfreier, schraubloser Arretierung
- Montierte universelle Niveauschaltungshalterung
- Bauhöhe und Ausstattung nach Baukastenprinzip anpassbar
- Weitestgehend ablagerungsfreier Sammelraum mit großem Nutzvolumen
Produktinformationen
- Einsatz
- Zur Förderung von Schmutz- und Abwasser aus Sanitärräumen, die sich unterhalb der Rückstauebene befinden
- Entwässerung von Niederschlagsflächen
- Schutz von erdeingebauten Abscheideranlagen gegen Rückstau aus der öffentlichen Kanalisation
- Konstruktion
- Sammelschacht aus hochwertigem Polymerbeton, optimiert gegen biogene Korrosion
- Maximale Einbautiefe Kl. D SLW 60: 4,50 Meter
- Leichte Zugänglichkeit für Wartungsarbeiten
- Einsatz von unterschiedlichen Niveaugebern durch universelle Niveauschaltungshalterung
- Ausgewählte Werkstoffkombinationen für höhere Standzeit
- Lieferumfang
- Verrohrung DN/OD 63 aus PVC-U bis ca. 30 cm außerhalb des Schachtes
- Unterwasserkupplungssystem mit kurzem Gleitrohr aus Kunststoff
- Kugelrückschlagventil aus Gusseisen EN-GJL
- Kugelhahn aus PVC-U
- Universal-Niveauschaltungshalterung aus Edelstahl
- 1 Zulauf DN/OD 160 (Maß Oberkante des Schachts bis Unterkante Zulauf: 1325 mm)
- Sammelschacht mit Kabelleerrohr und Entlüftungsanschluss DN/OD 110
- Folgende Komponenten oder Zubehörteile sind separat zu bestellen (Montage bauseits):
- Abdeckplatte inklusive Schachtabdeckung
- Pumpe
- Steigleiter
- Schaltgerät optional mit Freiluftschrank
- Niveauschaltung elektrisch oder pneumatisch
- Führungsrohr und Zugkette
- Schacht- und Ausgleichsringe zum Erreichen der gewünschten Zulauftiefe

