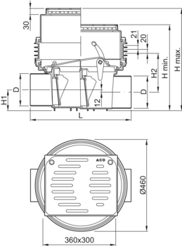
Doppelrückstauverschlüsse Triplex-K-2 mit Schachtssystem
Produktvorteile
- Nur 12 mm Gefällesprung
- Nur 71 cm Montageöffnung ohne Gegengefälle
- Optimal für den Sanierungsfall
- Kamerabefahrbar
- Wahlweise mit höhenverstellbarem Abdichtungsflansch für WU-Beton
Produktinformationen
- Aus Kunststoff
- Zum Einbau in die Bodenplatte
- Typ 2 geprüft gemäß DIN EN 13564
- Für fäkalienfreies Abwasser
- Mit 2 selbsttätig schließenden Rückstauklappen
- Selbsttätiger Verschluss
- Notverschluss
- Mit großer Reinigungs- und Wartungsöffnung und Prüfrohr
- Höhenverstellbares und drehbares Aufsatzstück
- Tagwasserdichte Wendeplatte für Fliesen- oder Kunststoffabdeckung
- Belastungsklasse: K 3
- Anschlussrohre werkseitig als Spitzenden ausgebildet
- Nachrüstbar zu Typ 3F gemäß DIN EN 13564
Infobox
- Machen Sie Ihren Keller rückstausicher: Wir helfen Ihnen bei der Auswahl des richtigen Rückstauschutzsystems:
Set aus Anschluss- und Überflutungsmodul
Passend für
- Rückstauverschlüsse Triplex-K
- DN 100 – DN 150
- Rückstauverschlüsse Quatrix-K
- Alle Abwasserhebeanlagen
- Alle Abscheider
- Vorbehälteranlage-duo
Beschreibung
- Meldung einer Leckage ausgelöst durch z.B. Rohrbruch
- Für elektrisch leitende Flüssigkeiten
- Optische und akustische Alarmmeldung ca. >85 dB
- Potentialfreier Kontakt zur Störungsweiterleitung
- Schutzart: Steuerung IP 54; Fühler: IP68
- Betriebspannung: 230 V/AC 50/60 Hz
- Steckerfertig: 1,4 m
- Überflutungsmelder mit 10 m Kabel
- Gewicht: 1,1 kg
- Preis/Stk. UVP zzgl. USt. 2026 [€]: 345,25 €
- Rabattgruppe: 12
Umrüstsatz
Umrüstsatz
Rückstauverschlussklappe
Verriegelungsdeckel
Deckel
Verlängerungsstück
Passend für
- Rückstauverschlüsse zum Einbau in die Bodenplatte
- Sinkamat-K (Unterflur)
- Muli-UF (Unterflur)
- Quatrix-K
Beschreibung
- Mit Lippendichtung
- Stufenweise Erhöhung um je 116 mm
- Beim Quatrix-K max. 1x Verlängerungsstück montieren
- Beim Sinkamat-K max. 2x Verlängerungsstücke montieren
- Bei Muli-UF (zzgl. Flex- Schlauch 0150.57.82) max. 1x Verlängerungsstück montieren
- Gewicht: 3,4 kg
- Preis/Stk. UVP zzgl. USt. 2026 [€]: 118,37 €
- Rabattgruppe: 7
Abdichtungsflansch
Aufsatzstück
Abdeckwendeplatte
Prüftrichter
Schmierfett
Passend für
- Geruchsverschlussdichtung, für Dichtungen der Rückstauklappen, zur Montage von Abdeckplatten und Wendedeckel
Set aus Anschluss- und Überflutungsmodul
Passend für
- Rückstauverschlüsse Triplex-K
- DN 100 – DN 150
- Rückstauverschlüsse Quatrix-K
- Alle Abwasserhebeanlagen
- Alle Abscheider
- Vorbehälteranlage-duo
Beschreibung
- Meldung einer Leckage ausgelöst durch z.B. Rohrbruch
- Für elektrisch leitende Flüssigkeiten
- Optische und akustische Alarmmeldung ca. >85 dB
- Potentialfreier Kontakt zur Störungsweiterleitung
- Schutzart: Steuerung IP 54; Fühler: IP68
- Betriebspannung: 230 V/AC 50/60 Hz
- Steckerfertig: 1,4 m
- Überflutungsmelder mit 10 m Kabel
- Gewicht: 1,1 kg
- Preis/Stk. UVP zzgl. USt. 2026 [€]: 345,25 €
- Rabattgruppe: 12
Umrüstsatz
Umrüstsatz
Rückstauverschlussklappe
Verriegelungsdeckel
Deckel
Verlängerungsstück
Passend für
- Rückstauverschlüsse zum Einbau in die Bodenplatte
- Sinkamat-K (Unterflur)
- Muli-UF (Unterflur)
- Quatrix-K
Beschreibung
- Mit Lippendichtung
- Stufenweise Erhöhung um je 116 mm
- Beim Quatrix-K max. 1x Verlängerungsstück montieren
- Beim Sinkamat-K max. 2x Verlängerungsstücke montieren
- Bei Muli-UF (zzgl. Flex- Schlauch 0150.57.82) max. 1x Verlängerungsstück montieren
- Gewicht: 3,4 kg
- Preis/Stk. UVP zzgl. USt. 2026 [€]: 118,37 €
- Rabattgruppe: 7
Abdichtungsflansch
Aufsatzstück
Abdeckwendeplatte
Prüftrichter
Schmierfett
Passend für
- Geruchsverschlussdichtung, für Dichtungen der Rückstauklappen, zur Montage von Abdeckplatten und Wendedeckel












