Einlaufkästen, 500 mm mit Stahlkante für ACO DRAIN® XtraDrain
Produktvorteile
- Aus Kunststoff (Polypropylen)
 - Mit V-Querschnitt
 - Für schraublose Rostarretierung Drainlock
 
Produktinformationen
- Rinnensystem gemäß DIN EN 1433/DIN 19580
 - Klassen A 15 - D 400
 
- Aus Polymerbeton
 - Mit Stahlkante
 - Mit Lippenlabyrinthdichtung (LLD) aus NBR für horizontalen, flüssigkeitsdichten Rohranschluss
 - Mit Schlammeimer Kunststoff
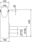
 - Für Rinnenkörper NW 100, Höhe 150
 
Kombistirnwand
Stirnwand
Kombistirnwand
Stirnwand





