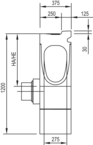
Tauchwandschacht, 1500 mm für ACO DRAIN® Monoblock T Bordschlitzrinne
Produktvorteile
- Rinnenkörper in monolithischer Bauweise ohne Klebefuge, natur
- Mit V-Querschnitt
- Aus Spezialpolymerbeton
- Integrierte CR-Dichtung am Rinnenstoß
- Hohe Verlegeleistung durch vertikales Versetzen von oben
Produktinformationen
- Nennweite 275 mm
- Bordhöhe 30 mm
- Bordhöhe in 70 mm lieferbar (Auf Anfrage)
- Klasse D 400
- Für das Rinnensystem T 275 V gelten Lieferzeit und Preis auf Anfrage
- Erläuterung:
- Typ links: Position Dichtung auf der Auslaufseite links (siehe Rendering)
- Typ rechts: Position Dichtung auf der Auslaufseite rechts (nicht dargestellt)
- Fest integrierte Tauchwand aus Polymerbeton
- Mit einseitigem Rinnenzulauf
- Inkl. 2 Revisionsabdeckungen aus Gusseisen EN-GJS (1x mit Öffnungen + 1x ohne Öffnungen)
- Mit Rohranschluss LLD für Gussrohr DN 200
Infobox
BIM
Die aktuellste BIM Revit Version finden Sie direkt am Produkt.
Weitere Revit Versionen finden Sie unter: BIM.



