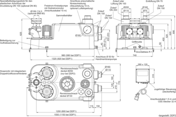
Hebeanlagen Muli-Star duo DDP
Produktvorteile
- Geringes Gewicht
- Unterschiedliche Zulaufhöhen
- CFD-optimiertes Laufrad
- Hohe chemische Beständigkeit aller Bauteile
- Geeignet für Einsatz hinter Fettabscheider
- Schnelle Montage
- Anschlussfertig
- Hohes Nutzvolumen – bis zu 185 l
- Angepasst an Türmaß: 780 mm
Produktinformationen
- Anwendungsbereiche
- Zur Installation und Anwendung in frostgeschützten Kellerräumen von Mehrfamilienhäusern, Bürogebäuden, Hotels und Krankenhäusern unterhalb der Rückstauebene
- Für häusliches fäkalienhaltiges und fäkalienfreies Abwasser
- Hinter Fettabscheidern bis NS 15 – in Verbindung mit Lufteinperlung
- Sammelbehälter aus Polyethylen
- Grundablass R 1"
- Revisionsöffnung zur einfachen Wartung, Durchmesser: 130 mm (DDP1), 130 mm und 250 mm (DDP2)
- Befestigungsset zur auftriebssicheren Verankerung
- Anschluss für Handmembranpumpe DN 50
- 2 horizontale Zulaufstutzen DN150
- 2 horizontale Zulaufstutzen DN150/ DN100
- 1 vertikale Zulaufstutzen DN200/DN150
- 1 vertikale Zulaufstutzen DN100/70 - Entlüftungsanschluss
- Anschluss Druckleitung
- Spezial-Rückflussverhinderer mit Kugel im Gehäuse
- Hosenrohr mit Anlüft- und Festsetzschraube
- Spezial-Befestigungsstück DN 80 zum elastischen Anschluss der Druckleitung mit 108 – 114,3 mm Rohraußendurchmesser (optional 88 – 93 mm)
- Anschlussflansch für Absperrschieber DN 80 PN 16
- 2 Pumpenaggregate
- Drehstrommotor: 400 V, 50 Hz
- Schutzart IP 68
- Integrierte permanente Motorüberwachung
- Verstopfungsfreies Freistromlaufrad
- 10 m Anschlusskabel
- Niveauschaltung
- Pneumatische Niveauschaltung mit 10 m Steuerleitugen
- Optional mit Lufteinperlung (Zubehör)
- Steuerung
- Schutzart IP 54
- 1,5m Kabel und CEE- Stecker (16A) – DDP x.1
- 1,5m Kabel und CEE- Stecker (32A) – DDP x.2
- Potentialfreie Sammelstör- und Betriebsmeldung
- Geprüft gemäß DIN EN 12050-1
- Zulässige Fördertemperatur bis 40°C (kurzfristig bis max. 65°C)
Infobox
Hinweis: Die maximale Temperatur darf nur für kurze Zeit erreicht werden.
Signalanlage mit GSM-Modul
Passend für
- Alle Fettabscheider
- Fettschichtdicken-Messgerät
- Vorbehälteranlage-duo
- Verfahrenstechnische Anlagen
- Fäkalien-Rückstauautomaten Quatrix-K Typ 3F
- Sinkamat-K (Unterflur) duo
- Muli-Hebeanlagen
- Pumpstationen
- Einbausets
Beschreibung
- Parametrisierbar per App (Android & iOs)
- Netzunabhängiger Alarm per 12V Bleigel-Akku
- Optische und Akustische Alarmmeldung
- Frei konfigurierbare Eingänge
- 6 digitale mit LED- Zustandsanzeige
- 1 analoger
- 1 Alarmausgang 12 V
- Weiterleitung der Alarms per SMS auf Mobiltelefone
- Zur Montage außerhalb des Ex-Bereiches
- Gehäuse: 192 x 150(mit Kabelverschraubung) x 100 mm (BxHxT)
- Schutzarzt: IP54
- Betriebsspannung: 230 V/AC 50/60 Hz
- Gewicht: 2 kg
- Preis/Stk. UVP zzgl. USt. 2025 [€]: 1.378,82 €
- Rabattgruppe: 12
Verlängerungskabel für Antenne GSM Modul
Passend für
- GSM - Modul
Beschreibung
- Länge inkl. Anschlüsse: ca. 15 m
- Kabel-Typ: RG58
- Anschlüsse:1 x SMA Stecker (SMA/M) und 1 x SMA Buchse (SMA/F)
- Es darf pro GSM- Modul nur max. ein Verlängerungskabel verwendet werden
- Nutzbar im Temperaturbereich: -20°C bis 85°C
- Preis/Stk. UVP zzgl. USt. 2025 [€]: 166,47 €
- Rabattgruppe: 12
Signalanlage
Passend für
- Fäkalien-Rückstauautomaten Quatrix‑K Typ 3F
- Alle Muli Abwasserhebeanlagen
- Vorbehälteranlage-duo
- Muli-Max
- Powerlift–P / Powerlift-P/F-H
- Sinkamat –K/-KD
- Sinkamat-Z
- Sinkamat-K (Unterflur)
- Duo
- LipuLift-P
Beschreibung
- Selbstaufladend
- Mit potentialfreiem Kontakt
- Optisch und akustisch
- Ohne Kontaktgeber
- Zur Montage außerhalb des Ex-Bereiches
- Abmessungen: 175 x 125 x 75 mm B x H x T
- Schutzart: IP65
- Betriebsspannung: 230 V/AC 50/60 Hz
- Steckerfertig mit Kabel: 2 m
- Gewicht: 1,4 kg
- Preis/Stk. UVP zzgl. USt. 2025 [€]: 415,40 €
- Rabattgruppe: 12
Set aus Anschluss- und Überflutungsmodul
Passend für
- Rückstauverschlüsse Triplex-K
- DN 100 – DN 150
- Rückstauverschlüsse Quatrix-K
- Alle Abwasserhebeanlagen
- Alle Abscheider
- Vorbehälteranlage-duo
Beschreibung
- Meldung einer Leckage ausgelöst durch z.B. Rohrbruch
- Für elektrisch leitende Flüssigkeiten
- Optische und akustische Alarmmeldung ca. >85 dB
- Potentialfreier Kontakt zur Störungsweiterleitung
- Schutzart: Steuerung IP 54; Fühler: IP68
- Betriebspannung: 230 V/AC 50/60 Hz
- Steckerfertig: 1,4 m
- Überflutungsmelder mit 10 m Kabel
- Gewicht: 1,1 kg
- Preis/Stk. UVP zzgl. USt. 2025 [€]: 345,25 €
- Rabattgruppe: 12
Signalhupe
Signalhupe
Passend für
- Pumpstationen mit Schaltgerät ACO MultiControl
- Abwasserhebeanlagen mit Schaltgerät ACO Multi Control
- LipuSmart-P
- LipuLift-P
Beschreibung
- Betriebsspannung: 230 V AC
- Stromaufnahme: 30 mA
- Abmessung: Ø62x85 mm (L/B x T)
- Schutzart: IP66
- 95 dB(A)
- Gewicht: 0,3 kg
- Preis/Stk. UVP zzgl. USt. 2025 [€]: 316,76 €
- Rabattgruppe: 12
Blitzleuchte
Blitzleuchte
Lufteinperlung
Passend für
- Muli-Star DDP
- Muli-Mini
Beschreibung
- Zur Nachrüstung bei Muli-Mini und Muli-Star DDP Abwasserhebeanlagen
- Mit Kleinstkompessor und Anschlussmaterial
- Zur Erhöhung der Betriebssicherheit
- Bei Schwimmdeckenbildung (fetthaltiges Abwasser)
- Gewicht: 1,9 kg
- Preis/Stk. UVP zzgl. USt. 2025 [€]: 474,59 €
- Rabattgruppe: 12
Absperrschieber DN 80 für Druckseite
Rundschnurring
Zulauf-/Absperrschieber DN 100
Passend für
- Abwasserhebeanlagen
- Fettabscheider aus Polyethylen
- Stärkeabscheider aus Polyethylen
- Vorbehälteranlagen Typ 2 und 4
- LipuMobil-P – Typ 0,5
Beschreibung
- Aus PVC
- Beiderseits Steckmuffe 110 mm mit Lippendichtring
- Gesamtmaße: 176 x 330 mm (L x H)
- Max. Druck: 0,5 bar
- Gewicht: 3,1 kg
- Preis/Stk. UVP zzgl. USt. 2025 [€]: 725,58 €
- Rabattgruppe: 12
Zulauf-/Absperrschieber DN 150
Passend für
- Abwasserhebeanlagen
- Fettabscheider aus Polyethylen
- Stärkeabscheider aus Polyethylen
- Vorbehälteranlagen Typ 7 bis 10
Beschreibung
- Aus PVC
- Beiderseits Steckmuffe 160 mm mit Lippendichtring
- Gesamtmaße: 226 x 510 mm (L x H)
- Max. Druck: 0,5 bar
- Gewicht: 7 kg
- Preis/Stk. UVP zzgl. USt. 2025 [€]: 1.204,55 €
- Rabattgruppe: 12
Zulauf-/Absperrschieber DN 200
Handmembranpumpe R 1½"
Dreiwegehahn R 1½"
Signalanlage mit GSM-Modul
Passend für
- Alle Fettabscheider
- Fettschichtdicken-Messgerät
- Vorbehälteranlage-duo
- Verfahrenstechnische Anlagen
- Fäkalien-Rückstauautomaten Quatrix-K Typ 3F
- Sinkamat-K (Unterflur) duo
- Muli-Hebeanlagen
- Pumpstationen
- Einbausets
Beschreibung
- Parametrisierbar per App (Android & iOs)
- Netzunabhängiger Alarm per 12V Bleigel-Akku
- Optische und Akustische Alarmmeldung
- Frei konfigurierbare Eingänge
- 6 digitale mit LED- Zustandsanzeige
- 1 analoger
- 1 Alarmausgang 12 V
- Weiterleitung der Alarms per SMS auf Mobiltelefone
- Zur Montage außerhalb des Ex-Bereiches
- Gehäuse: 192 x 150(mit Kabelverschraubung) x 100 mm (BxHxT)
- Schutzarzt: IP54
- Betriebsspannung: 230 V/AC 50/60 Hz
- Gewicht: 2 kg
- Preis/Stk. UVP zzgl. USt. 2025 [€]: 1.378,82 €
- Rabattgruppe: 12
Verlängerungskabel für Antenne GSM Modul
Passend für
- GSM - Modul
Beschreibung
- Länge inkl. Anschlüsse: ca. 15 m
- Kabel-Typ: RG58
- Anschlüsse:1 x SMA Stecker (SMA/M) und 1 x SMA Buchse (SMA/F)
- Es darf pro GSM- Modul nur max. ein Verlängerungskabel verwendet werden
- Nutzbar im Temperaturbereich: -20°C bis 85°C
- Preis/Stk. UVP zzgl. USt. 2025 [€]: 166,47 €
- Rabattgruppe: 12
Signalanlage
Passend für
- Fäkalien-Rückstauautomaten Quatrix‑K Typ 3F
- Alle Muli Abwasserhebeanlagen
- Vorbehälteranlage-duo
- Muli-Max
- Powerlift–P / Powerlift-P/F-H
- Sinkamat –K/-KD
- Sinkamat-Z
- Sinkamat-K (Unterflur)
- Duo
- LipuLift-P
Beschreibung
- Selbstaufladend
- Mit potentialfreiem Kontakt
- Optisch und akustisch
- Ohne Kontaktgeber
- Zur Montage außerhalb des Ex-Bereiches
- Abmessungen: 175 x 125 x 75 mm B x H x T
- Schutzart: IP65
- Betriebsspannung: 230 V/AC 50/60 Hz
- Steckerfertig mit Kabel: 2 m
- Gewicht: 1,4 kg
- Preis/Stk. UVP zzgl. USt. 2025 [€]: 415,40 €
- Rabattgruppe: 12
Set aus Anschluss- und Überflutungsmodul
Passend für
- Rückstauverschlüsse Triplex-K
- DN 100 – DN 150
- Rückstauverschlüsse Quatrix-K
- Alle Abwasserhebeanlagen
- Alle Abscheider
- Vorbehälteranlage-duo
Beschreibung
- Meldung einer Leckage ausgelöst durch z.B. Rohrbruch
- Für elektrisch leitende Flüssigkeiten
- Optische und akustische Alarmmeldung ca. >85 dB
- Potentialfreier Kontakt zur Störungsweiterleitung
- Schutzart: Steuerung IP 54; Fühler: IP68
- Betriebspannung: 230 V/AC 50/60 Hz
- Steckerfertig: 1,4 m
- Überflutungsmelder mit 10 m Kabel
- Gewicht: 1,1 kg
- Preis/Stk. UVP zzgl. USt. 2025 [€]: 345,25 €
- Rabattgruppe: 12
Signalhupe
Signalhupe
Passend für
- Pumpstationen mit Schaltgerät ACO MultiControl
- Abwasserhebeanlagen mit Schaltgerät ACO Multi Control
- LipuSmart-P
- LipuLift-P
Beschreibung
- Betriebsspannung: 230 V AC
- Stromaufnahme: 30 mA
- Abmessung: Ø62x85 mm (L/B x T)
- Schutzart: IP66
- 95 dB(A)
- Gewicht: 0,3 kg
- Preis/Stk. UVP zzgl. USt. 2025 [€]: 316,76 €
- Rabattgruppe: 12
Blitzleuchte
Blitzleuchte
Lufteinperlung
Passend für
- Muli-Star DDP
- Muli-Mini
Beschreibung
- Zur Nachrüstung bei Muli-Mini und Muli-Star DDP Abwasserhebeanlagen
- Mit Kleinstkompessor und Anschlussmaterial
- Zur Erhöhung der Betriebssicherheit
- Bei Schwimmdeckenbildung (fetthaltiges Abwasser)
- Gewicht: 1,9 kg
- Preis/Stk. UVP zzgl. USt. 2025 [€]: 474,59 €
- Rabattgruppe: 12
Absperrschieber DN 80 für Druckseite
Rundschnurring
Zulauf-/Absperrschieber DN 100
Passend für
- Abwasserhebeanlagen
- Fettabscheider aus Polyethylen
- Stärkeabscheider aus Polyethylen
- Vorbehälteranlagen Typ 2 und 4
- LipuMobil-P – Typ 0,5
Beschreibung
- Aus PVC
- Beiderseits Steckmuffe 110 mm mit Lippendichtring
- Gesamtmaße: 176 x 330 mm (L x H)
- Max. Druck: 0,5 bar
- Gewicht: 3,1 kg
- Preis/Stk. UVP zzgl. USt. 2025 [€]: 725,58 €
- Rabattgruppe: 12
Zulauf-/Absperrschieber DN 150
Passend für
- Abwasserhebeanlagen
- Fettabscheider aus Polyethylen
- Stärkeabscheider aus Polyethylen
- Vorbehälteranlagen Typ 7 bis 10
Beschreibung
- Aus PVC
- Beiderseits Steckmuffe 160 mm mit Lippendichtring
- Gesamtmaße: 226 x 510 mm (L x H)
- Max. Druck: 0,5 bar
- Gewicht: 7 kg
- Preis/Stk. UVP zzgl. USt. 2025 [€]: 1.204,55 €
- Rabattgruppe: 12
Zulauf-/Absperrschieber DN 200
Handmembranpumpe R 1½"
Dreiwegehahn R 1½"

















