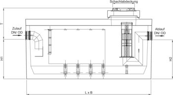
Oleosmart-PR-C-NST ohne Schlammfang (beschichtet)
Produktvorteile
- Entsprechend Güte- und Prüfbestimmungen Gütesicherung Abscheideranlagen RAL-GZ 693
- Wartungsarm durch filterlose Mehrkanaltechnologie
- Hohe Sedimentationsrate durch lange Fließstrecke
- Betriebssicherheit durch turbulenzarme Schwimmerführung
Produktinformationen
- Aus Stahlbeton
- Filterfreie Koaleszenzstufe (Klasse-I)
- Simultane Trennung von Schlamm und Leichtflüssigkeiten
- Freier Kugeldurchgang von mindestens 40 mm
- Separat zu bestellen:
- Alarmanlage
Infobox
BIM
Die aktuellste BIM Revit Version finden Sie direkt am Produkt.
Weitere Revit Versionen finden Sie unter: BIM.

Aufbau 1 als Abdeckplatte

Auflagering nach/ähnlich DIN 4034 (Position 1) aus Polymerbeton

Auflagering nach/ähnlich DIN 4034 (Position 1)

Schachtring mit Muffe mit Dichtung nach/ähnlich DIN 4034 (Position 2)

Procurat Alarmanlagen
Verbindungskabel zur Verlegung im Leerrohr
Passend für
- ACO Procurat
- Typ A
Beschreibung
- Zum Verbinden von Kabelkupplung und Überwachungsgerät
- Preis 01.01.2025 in € (zzgl. Umsatzsteuer): 3,10
- Rabattgruppe: ZZ
- Gewicht: 0,1 kg
Ölabsaugung
Passend für
- ACO Abscheideranlagen
- (Bei Einbau einer Öl- oder Schlammabsaugung muss zwingend eine Schachtabdeckung mit LW 800 oder wahlweise 2 x LW 600 eingebaut werden.)
- Einbautiefe bis 3000 mm
Beschreibung
- Absaugvorrichtung für abgeschiedene Leichtflüssigkeiten
- Schlammabsaugung auch bei Ölabsaugung
- Mit Absaugschutz
- Mit Anschlussmöglichkeit für Entsorgungsfahrzeug
- Mit C-Festkupplung (DIN 14307)
- Mit C-Blindkupplung (DIN 143011)
- Abmessungen: 340 x 240 x 260 mm
- Preis 01.01.2025 in € (zzgl. Umsatzsteuer): 1700,00
- Rabattgruppe: ZZ
- Gewicht: 8 kg
Ölabsaugung
Passend für
- ACO Abscheideranlagen
- (Bei Einbau einer Öl- oder Schlammabsaugung muss zwingend eine Schachtabdeckung mit LW 800 oder wahlweise 2 x LW 600 eingebaut werden.)
- Einbautiefe bis 5000 mm
Beschreibung
- Absaugvorrichtung für abgeschiedene Leichtflüssigkeiten
- Schlammabsaugung auch bei Ölabsaugung
- Mit Absaugschutz
- Mit Anschlussmöglichkeit für Entsorgungsfahrzeug
- Mit C-Festkupplung (DIN 14307)
- Mit C-Blindkupplung (DIN 143011)
- Abmessungen: 340 x 240 x 260 mm
- Preis 01.01.2025 in € (zzgl. Umsatzsteuer): 3307,00
- Rabattgruppe: ZZ
- Gewicht: 13 kg
Opox EP-Spachtel
Passend für
- Alle Stahlbetonteile
- Reichweite von 1 Gebinde: 1 x Ausgleichsring 800er L.W. (ca. 10 mm Auflagefläche, vollflächig incl. Fuge vollflächig innen und außen verfugen)
- 1,5 x Ausgleichsring 600er L.W. (ca. 10 mm Auflagefläche, vollflächig incl. Fuge vollflächig innen und außen verfugen)
Beschreibung
- Inklusive Härter
- In 5,9 kg Gebinde
- Zum Verkleben und dauerhaften Abdichten von allen Betonteilen
- Preis 01.01.2025 in € (zzgl. Umsatzsteuer): 151,00
- Rabattgruppe: ZZ
- Gewicht: 5,9 kg
Sikadur Kleber
Passend für
- Alle Polymerbetonteile
- Verbrauchsangaben:
- Fuge bei Innendurchmesser 1500 mm: ca. 3 kg
- Fuge bei Innendurchmesser 1000 mm: ca. 2 kg
- Fuge für Auflagering LW600/800: ca. 1 kg
Beschreibung
- In 6,0 kg und 1,2 kg Gebinde
- Für bauseits auszuführende dichte Klebefuge
- Preis 01.01.2025 in € (zzgl. Umsatzsteuer): 325,00
- Rabattgruppe: ZZ
- Gewicht: 6 kg
Sikadur Kleber
Passend für
- Alle Polymerbetonteile
- Verbrauchsangaben:
- Fuge bei Innendurchmesser 1500 mm: ca. 3 kg
- Fuge bei Innendurchmesser 1000 mm: ca. 2 kg
- Fuge für Auflagering LW600/800: ca. 1 kg
Beschreibung
- In 6,0 kg und 1,2 kg Gebinde
- Für bauseits auszuführende dichte Klebefuge
- Preis 01.01.2025 in € (zzgl. Umsatzsteuer): 82,25
- Rabattgruppe: ZZ
- Gewicht: 1,2 kg
Probenehmer
Passend für
- ACO Abscheideranlagen
- Einbautiefe bis 5.000 mm
Beschreibung
- Mit integrierter Probenahme
- Zur Entnahme einer Probe aus dem Abwasserstrom
- Bestehend aus:
- Probenahmepumpe mit Saugkupplung
- Anschlussschlauch mit Saugkupplung und Anschlussverschraubung
- Preis 01.01.2025 in € (zzgl. Umsatzsteuer): 365,00
- Rabattgruppe: ZZ

Aufbau 1 als Abdeckplatte

Auflagering nach/ähnlich DIN 4034 (Position 1) aus Polymerbeton

Auflagering nach/ähnlich DIN 4034 (Position 1)

Schachtring mit Muffe mit Dichtung nach/ähnlich DIN 4034 (Position 2)

Procurat Alarmanlagen
Verbindungskabel zur Verlegung im Leerrohr
Passend für
- ACO Procurat
- Typ A
Beschreibung
- Zum Verbinden von Kabelkupplung und Überwachungsgerät
- Preis 01.01.2025 in € (zzgl. Umsatzsteuer): 3,10
- Rabattgruppe: ZZ
- Gewicht: 0,1 kg
Ölabsaugung
Passend für
- ACO Abscheideranlagen
- (Bei Einbau einer Öl- oder Schlammabsaugung muss zwingend eine Schachtabdeckung mit LW 800 oder wahlweise 2 x LW 600 eingebaut werden.)
- Einbautiefe bis 3000 mm
Beschreibung
- Absaugvorrichtung für abgeschiedene Leichtflüssigkeiten
- Schlammabsaugung auch bei Ölabsaugung
- Mit Absaugschutz
- Mit Anschlussmöglichkeit für Entsorgungsfahrzeug
- Mit C-Festkupplung (DIN 14307)
- Mit C-Blindkupplung (DIN 143011)
- Abmessungen: 340 x 240 x 260 mm
- Preis 01.01.2025 in € (zzgl. Umsatzsteuer): 1700,00
- Rabattgruppe: ZZ
- Gewicht: 8 kg
Ölabsaugung
Passend für
- ACO Abscheideranlagen
- (Bei Einbau einer Öl- oder Schlammabsaugung muss zwingend eine Schachtabdeckung mit LW 800 oder wahlweise 2 x LW 600 eingebaut werden.)
- Einbautiefe bis 5000 mm
Beschreibung
- Absaugvorrichtung für abgeschiedene Leichtflüssigkeiten
- Schlammabsaugung auch bei Ölabsaugung
- Mit Absaugschutz
- Mit Anschlussmöglichkeit für Entsorgungsfahrzeug
- Mit C-Festkupplung (DIN 14307)
- Mit C-Blindkupplung (DIN 143011)
- Abmessungen: 340 x 240 x 260 mm
- Preis 01.01.2025 in € (zzgl. Umsatzsteuer): 3307,00
- Rabattgruppe: ZZ
- Gewicht: 13 kg
Opox EP-Spachtel
Passend für
- Alle Stahlbetonteile
- Reichweite von 1 Gebinde: 1 x Ausgleichsring 800er L.W. (ca. 10 mm Auflagefläche, vollflächig incl. Fuge vollflächig innen und außen verfugen)
- 1,5 x Ausgleichsring 600er L.W. (ca. 10 mm Auflagefläche, vollflächig incl. Fuge vollflächig innen und außen verfugen)
Beschreibung
- Inklusive Härter
- In 5,9 kg Gebinde
- Zum Verkleben und dauerhaften Abdichten von allen Betonteilen
- Preis 01.01.2025 in € (zzgl. Umsatzsteuer): 151,00
- Rabattgruppe: ZZ
- Gewicht: 5,9 kg
Sikadur Kleber
Passend für
- Alle Polymerbetonteile
- Verbrauchsangaben:
- Fuge bei Innendurchmesser 1500 mm: ca. 3 kg
- Fuge bei Innendurchmesser 1000 mm: ca. 2 kg
- Fuge für Auflagering LW600/800: ca. 1 kg
Beschreibung
- In 6,0 kg und 1,2 kg Gebinde
- Für bauseits auszuführende dichte Klebefuge
- Preis 01.01.2025 in € (zzgl. Umsatzsteuer): 325,00
- Rabattgruppe: ZZ
- Gewicht: 6 kg
Sikadur Kleber
Passend für
- Alle Polymerbetonteile
- Verbrauchsangaben:
- Fuge bei Innendurchmesser 1500 mm: ca. 3 kg
- Fuge bei Innendurchmesser 1000 mm: ca. 2 kg
- Fuge für Auflagering LW600/800: ca. 1 kg
Beschreibung
- In 6,0 kg und 1,2 kg Gebinde
- Für bauseits auszuführende dichte Klebefuge
- Preis 01.01.2025 in € (zzgl. Umsatzsteuer): 82,25
- Rabattgruppe: ZZ
- Gewicht: 1,2 kg
Probenehmer
Passend für
- ACO Abscheideranlagen
- Einbautiefe bis 5.000 mm
Beschreibung
- Mit integrierter Probenahme
- Zur Entnahme einer Probe aus dem Abwasserstrom
- Bestehend aus:
- Probenahmepumpe mit Saugkupplung
- Anschlussschlauch mit Saugkupplung und Anschlussverschraubung
- Preis 01.01.2025 in € (zzgl. Umsatzsteuer): 365,00
- Rabattgruppe: ZZ



